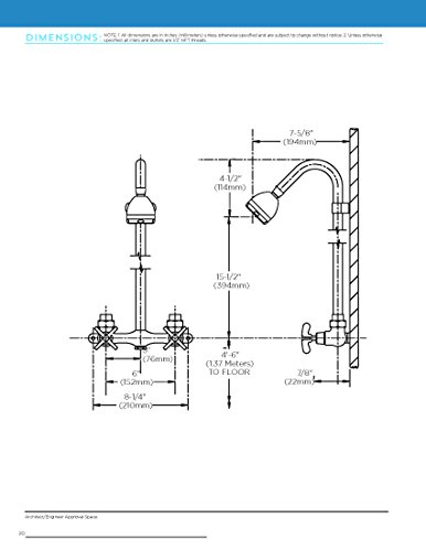
Commander SC-1220-AF Exposed Shower with Cross Handles

[Product Information]