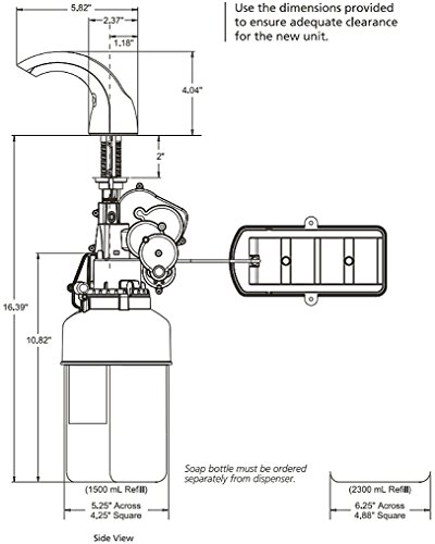
GOJ854001 - Gojo CXT Touch Free Soap Dispenser