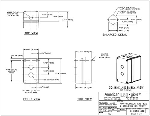
22mm Polycarbonate Enclosure, Light Gray, 2 Hole