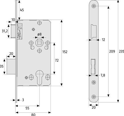
ABUS 208126 Einsteckschloss PZ Typ TKZ20 L HG